洛陽千島裝飾微信客服
掃描洛陽千島裝飾公司二維碼添加好友可贈送免費驗房服務、免費出方案
來源:http://www.youqiangtou.com ?? 發布時間:2015-07-08 ?? 作者:洛陽千島裝飾公司
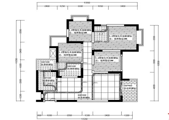
地面材質圖

一般需要標注地面所用的材質種類,是瓷磚還是地板,拼鋪走向、圖案及不同材料的分界說明。好的設計師繪制的地面材質圖一般都能數出所用地磚的數量,這樣就讓預算做不了手腳,地板的需要量也可以再圖上計算出來。當然,這些都是毛估的,實際的用量還是要把損耗考慮進去的,不過可以作為一個參照物看設計師計算的是否正確。