洛陽千島裝飾微信客服
掃描洛陽千島裝飾公司二維碼添加好友可贈送免費驗房服務、免費出方案
來源:http://www.youqiangtou.com ?? 發布時間:2015-07-08 ?? 作者:洛陽千島裝飾公司
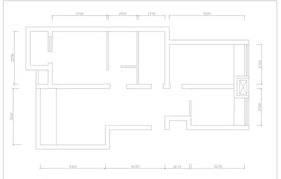
原始平面圖

這是量房后畫的第一張圖紙,是畫設計圖紙的基礎。主要標注出房型的尺寸、層高、原始管路及門洞等。而先出貓膩的地方一般是原始圖,如果尺寸量的不準確,人工費、材料費、管理費、設計費都會從這上面加出來。如果擔心有貓膩,拿到圖紙時可以自己用卷尺大概的量一下,一般尺寸不會相差很多的。