洛陽千島裝飾微信客服
掃描洛陽千島裝飾公司二維碼添加好友可贈送免費驗房服務、免費出方案
來源:http://www.youqiangtou.com ?? 發布時間:2018-07-28 ?? 作者:洛陽千島裝飾公司
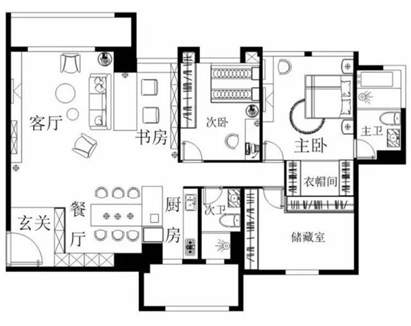
誰說北歐風就不適合做婚房?4室2廳的戶型,每一處都體現出了業主的用心,沒見過這么漂亮的北歐風。來看看今天這個案例,120㎡的面積,文藝簡約的風格,讓人看到就喜歡。洛陽裝修的小伙伴們一起來看看吧。


玄關的整體感覺非常干凈簡單,墻面上不規則的掛著圓形的實木衣掛,有種自然的感覺。地上貼著圖案各不相同的小花磚,帶來活潑可愛的感覺。

墻磚與地磚相呼應,但是稍微花哨一些,如果你不喜歡這種風格,也可以不貼墻磚。

特地留了一盞掛燈,暖黃色的燈光照亮黑暗,每天下班后都會感覺到家的溫暖。

作為家里的第一印象,客廳的整個顏色偏淺,比較輕快。灰色、綠色、藍色,搭配起來也非常和諧。角落的黃色電鍍玻璃落地燈帶來了獨特的溫暖,給淡雅的北歐風增添了不俗的設計感。

由于圖片光線問題,其實這個是張薄荷綠的座椅哦,很好的點綴了空間,使得色調不單一。

這個櫥柜比較有意思,是下掀式的,能有效阻止灰塵的進入,而且非常有質感。

電視背景墻沒有選擇復雜的設計,簡簡單單的白色墻面,配上了置物架的設計,讓墻壁不顯空泛。

放上精致的小物件,電視柜上那個等就是沙發旁的迷你版哦。

拉開窗簾,大大的落地門窗擁有良好的透光性,保證房間內的采光充足。

餐桌采用了木質設計,倚靠著文藝的紅色磚墻,加上獨特的吊燈,仿佛置身咖啡館中一樣。

有趣的是,每一把餐椅都是不同的形狀、不同的顏色。

廚房也是開放式的設計,綠色的柜子頗為亮眼,每個格子放上一樣物品,竟有種說不出來的精致感覺。

地磚的選擇也很特別,運用幾何的方塊設計,打造出立體的感覺。

白色的櫥柜渲染出一片純白的天地。

換個角度,可以看清楚客廳、餐廳和廚房的整個樣貌。

書房也沒有做成封閉式的設計,倒是讓整個采光好了很多。

墻面做成了淺綠色,非常的干凈清爽。


主臥里使用了大面積的白色和原木色進行搭配,使得臥室頗具素雅格調。具有北歐元素的鹿頭燈飾,讓照明、裝飾兩大功能完美呈現出來。

這個床頭柜也是很別致,是一個收納筐,有一種混搭的時尚感。

真的是每一處都彰顯精致。

主臥的一面墻壁,貼了壁紙,幾何圖案的設計讓其看上去很有視覺沖擊力。

重點是主臥里的這個衣帽間,透明的玻璃門讓衣帽間一覽無余,但是還貼心的安裝了百葉門簾,每個女人都會愛上這樣的衣帽間吧。


次臥可以作為客房,里面配備了書桌,也可以作為一個小型的書房使用,橙色的椅子是不是很活潑呢。

白色的衣柜,中間做了很多的抽屜,可以放一些襪子、內衣褲這種比較小的衣物。

衛生間整體還是白色的基調。

用小花磚進行點綴,擺脫單調的感覺。

只要花些心思,其實什么風格都能凸顯精致的感覺,住在這種富有藝術性的房間里,真是太美好了。
相關文章推薦:???